An exceptional section in the prestigious Harakeke Heights development
With titles set to be granted in the first quarter of 2026 it’s time to envision and plan your ideal home. Seize the opportunity to be a part of this flourishing community, just moments away from the pristine shores of Waikanae Beach.
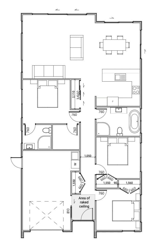
Your Dream Home Awaits:
This exclusive house and land package is tailored for those seeking a perfect blend of modern aesthetics and practical design. Priced, is this beautiful 3-bedroom layout, including a single garage, two bathrooms, and a master bedroom with a walk-in wardrobe. The contemporary charm of Lunawood cladding throughout adds a touch of elegance.
Built by Elevation Homes:
Your dream home deserves the best, and Elevation Homes, an esteemed Kapiti Coast builder, is set to turn your vision into reality. Renowned for transparency, honesty, and a stellar build experience, Elevation Homes ensures that your journey from blueprint to key in hand is nothing short of extraordinary. Join the ranks of satisfied clients who have experienced the excellence of Elevation Homes.
All-Inclusive Package:
The price includes both the house and land, leaving you with nothing to worry about. Even down to your driveway. Elevation Homes believes in providing a hassle-free experience, allowing you to focus on the exciting aspects of turning this house into your home.
Customisation Opportunities:
This isn’t just a house; it’s your canvas. The package invites you to put your personal touch on the design. Choose your favourite colours, design your dream kitchen, and add those unique elements that make it distinctly yours. Elevation Homes is here to accommodate your vision, ensuring every detail aligns with your lifestyle.
Act Now, Make It Yours:
Contact us today to discuss the finer details, explore your options, and begin this exciting journey of building your dream home with us!
Sections are selling fast, so give us a call today.


