Settle into the heart of Manu Park
This ready-to-build house and land package is just waiting for you! With title issued and services to the boundary, the groundwork has been done so you can dive into the exciting stuff—bringing your unique vision to life on a north-west-facing section perfect for enjoying sunlit outdoor spaces and evening get-togethers.
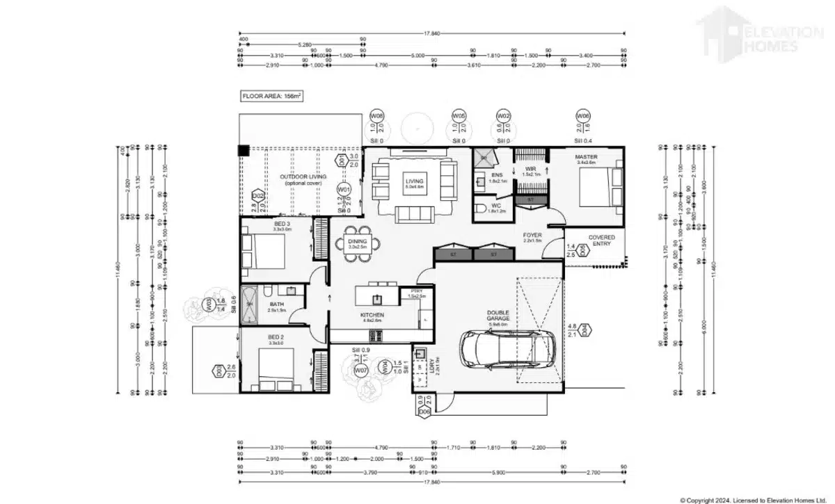
Key Features:
- Location: Manu Park, Waikanae – friendly, community-focused with stunning surroundings.
- Design: Energy-efficient, stylish, and designed for comfortable, modern living.
- Section: Fully serviced, with a flat, sunny north-west-facing outdoor area.
- Geotech Complete: Save time and costs—site work is done, ready for build!
- Customisable Interiors: Make it truly yours with flexible design options.
- Premium Quality: Featuring Robertson plumbing fixtures, Smeg appliances, and more.
- Peace of Mind: Fixed-price contract (excl. groundworks), so you know where you stand.
With Elevation Homes, you’re not just building a house—you’re creating a home. Our flexible design approach lets you add your own style, with options for personalising interiors or going fully bespoke. We believe in fixed-price peace of mind (groundworks excluded), transparency, and keeping you in the loop every step of the way. Plus, as New Zealand Certified Builders, we’ve got you covered with a 10-year Halo Guarantee.
Why Choose Us?
As a family-owned, Kapiti Coast builder, we do things differently. No subcontracting builders here—we control the whole process to ensure top-quality craftsmanship and timelines you can count on. Our clients trust us to create homes they love, with no surprises and a personal touch that makes all the difference.
Terms & Conditions
Price includes both home and land, based on our measured estimate. Full contract pricing will be confirmed before signing, pending any site-specific reports. Titles have been issued, so you’re ready to go!


